Floor Plan Creation Portfolio
Explore our floor plan creation work, designed to provide clear, accurate visual layouts that help buyers understand a property at a glance. We work with real estate agents and photographers worldwide to convert property imagery into professional, easy-to-read floor plans that reflect correct proportions, room relationships, and spatial flow.
Our floor plans improve listing clarity by allowing buyers to visualise layout, movement, and functionality before visiting in person. The result is precise, presentation-ready floor plans that enhance property understanding, build buyer confidence, and strengthen listings in todayβs digital-first real estate market.

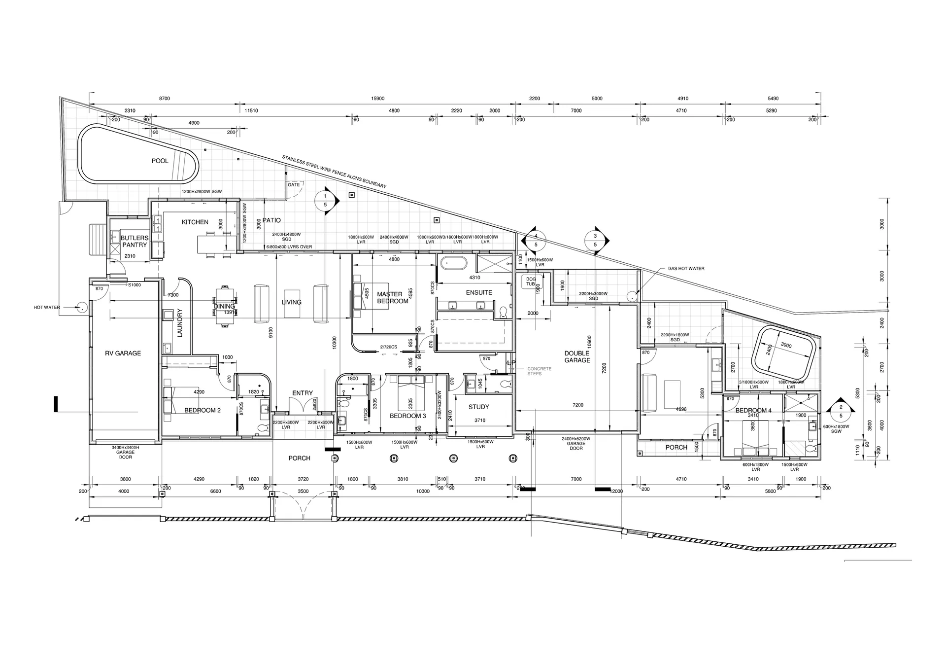
Project: Multi-Generational Home Floor Plan Presentation
Location: Austin, Texas, USA πΊπΈ
The Challenge:
The original architectural drawings were highly technical and difficult for typical U.S. homebuyers to interpret, making it hard to visualise room flow, living zones, and the full lifestyle potential of the property.
The Solution:
We transformed the complex construction plan into a clean, colour-enhanced layout that clearly defines living areas, bedrooms, garages, and outdoor amenities such as the pool and spa.

Project: Residential Floor & Site Plan Visualisation
Location: Surrey, United Kingdom π¬π§
The Challenge:
The original hand-drawn plans were unclear and difficult for buyers to interpret, making it hard to understand room layout, outdoor space, and the relationship between the main home and secondary residence.
The Solution:
We created clean, colour-coded floor and site plans that clearly present living areas, bedrooms, garages, and the pool, helping UK buyers quickly visualise layout, usability, and overall property value for stronger marketing appeal.

Project: 2D to 3D Floor Plan Transformation
Location: Melbourne, Victoria, Australia π¦πΊ
The Challenge:
The traditional 2D floor plan made it difficult for buyers to fully visualise room proportions, furniture placement, and overall spatial flow within the home.
The Solution:
We converted the flat architectural layout into a detailed, fully furnished 3D floor plan that clearly illustrates living areas, bedrooms, circulation, and the garage. This immersive presentation helps Australian buyers better understand scale, functionality, and lifestyle potential – enhancing engagement and marketing effectiveness.

Project: Compact Home 2D to 3D Visualization
Location: Portland, Oregon, USA πΊπΈ
The Challenge:
The traditional 2D floor plan offered limited spatial clarity, making it difficult for buyers to understand room proportions, layout flow, and how the main living areas connect to the kitchen and garage.
The Solution:
We developed a clean, fully furnished 3D floor plan that clearly illustrates circulation, scale, and functional living zones. This realistic presentation helps U.S. buyers quickly grasp comfort, usability, and lifestyle potential – enhancing overall listing appeal and buyer engagement.
Need clear and accurate floor plans?
Upload your details now. Receive clean, ready-to-use floor plans by tomorrow.
